Ihr Wohlfühl-Domizil in Spiekershausen

Kaufpreis

495.000 €

 

Provision für Käufer

3,57%

 

 

Lage

Spiekershausen ist ein idyllischer Ortsteil der Gemeinde Staufenberg im niedersächsischen Landkreis Göttingen, direkt an der Landesgrenze zu Hessen gelegen. Eingebettet in die Flusslandschaft des unteren Fuldatals bietet der Ort eine naturnahe Lage mit hohem Erholungswert – nur wenige Autominuten von der Stadt Kassel entfernt.

 

Die Umgebung ist ideal für Naturliebhaber, Spaziergänger, Radfahrer und alle, die das ruhige, ländliche Leben schätzen. Die Fulda fließt malerisch am Ortsrand entlang und lädt zu Wassersport und entspannten Uferspaziergängen ein.

 

Gleichzeitig sind die Anbindungen in die umliegenden Städte hervorragend: Über die B3 und nahegelegene Autobahnanschlüsse erreichen Sie Kassel, Hann. Münden oder Göttingen schnell und unkompliziert.

 

Trotz seiner ruhigen Lage verfügt Spiekershausen über eine gute Grundversorgung im nahen Umkreis. Schulen, Kindergärten, Ärzte und Einkaufsmöglichkeiten befinden sich in den angrenzenden Ortsteilen und Städten. Auch der öffentliche Nahverkehr ist durch Buslinien und die Nähe zum Bahnhof Kassel gut erreichbar.

 

Die Kombination aus naturnahem Wohnen, guter Verkehrsanbindung und der Nähe zu städtischer Infrastruktur macht Spiekershausen zu einem attraktiven Wohnort für Familien, Berufspendler und Ruhesuchende gleichermaßen.

 

 

Das Haus

Baujahr: 1963/1997

  • Zustand: gepflegt
  • voll unterkellert
  • Terrasse, Balkon
  • Bad mit Fenster und Dusche, Gäste-WC
  • offene Küche
  • Böden: Fliesenboden, Granitboden, Laminat, Parkett
  • Fenster: Holzfenster
  • Weitere Räume: Abstellraum, Wasch-Trockenraum
  • Sauna
  • Ausblick: Fernblick

 

Energie & Heizung

 

Energieausweistyp

Bedarfsausweis

 

Gebäudetyp

Wohngebäude

  

Baujahr laut Energieausweis

1997

 

Wesentliche Energieträger

Öl

  

Effizienzklasse

F

 

Endenergiebedarf

189,30 kWh/(m²·a)

  

Weitere Energiedaten

 

Energieträger

Öl

 

Heizungsart

Zentralheizung

   

 

Objektbeschreibung

Wohlfühl-Domizil: Familienhaus in Staufenberg Spiekershausen auf einem großen und schönen Grundstück.

 

Kommen Sie herein - in Ihr helles und freundliches Zuhause.

 

Es erwarten Sie...

 

...sehr schön geschnittene 5 Zimmer

...eine offene Küche zum Esszimmer hin

...ein gemütliches Wohnzimmer

...ein Kamin im Wohnbereich

...ein modernes Tageslichtbad mit Dusche

...ein Büro/Gästezimmer, ein Bad und ein Gäste-WC im Untergeschoss

...ein herrlicher Garten mit Gartenhaus

...eine Sonnen-Terrasse mit Fernblick ins Grüne

...eine großräumige Doppel-Garage für Ihren Fuhrpark

...und das Highlight: ein eigener Wellnessbereich mit Sauna und Ruheraum!

 

Dieses schöne Einfamilienhaus befindet sich in Spiekershausen, ruhig und familienfreundlich gelegen.

 

Das Bad im Erdgeschoss wurde in 2023 modernisiert, die Elektrik ist zeitgemäß. Die Öl-Heizung von Viessmann ist aus dem Baujahr 1997.

 

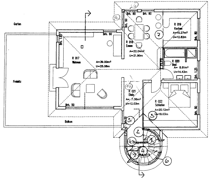
Der Anbau an das Wohnhaus, bestehend aus dem neuen Treppenhaus, ist in 1997 erfolgt.

 

Die Grundrisse sind in den Bildern ersichtlich.

 

Zögern Sie nicht lange und erfüllen Sie sich mit dieser Immobilie Ihren Traum vom Eigenheim.